Référence : 78_1527

COMMERCE À VENDRE
À ORGEVAL - 78630
DE 884 m²

3 150 000 € Net vendeur

Disponibilité Immédiate

  • VENTE COMMERCE ORGEVAL (78630) | 78_1527 | photo 1
  • VENTE COMMERCE ORGEVAL (78630) | 78_1527 | photo 2
  • VENTE COMMERCE ORGEVAL (78630) | 78_1527 | photo 3

Description

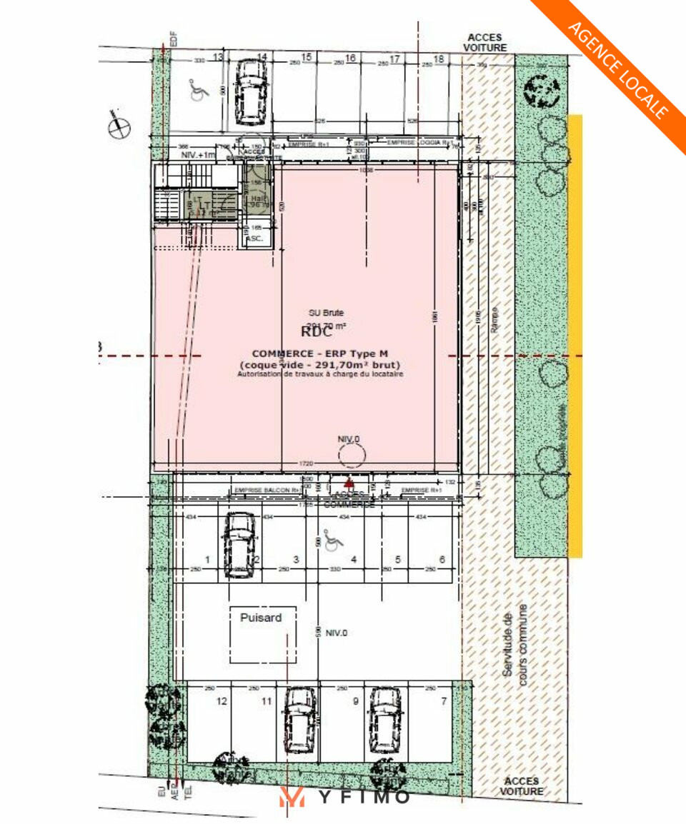
YFIMO, agence locale specialisée en immobilier d'entreprise, vous propose à l'achat un bâtiment neuf commercial ERP type M livré brut.
Un RDC, 2 étages et un toit-terrasse constructible le composent.
Situé en premier rideau sur un axe très passant (25 à 30 000 véhicules/jour), et au coeur d'une zone commerciale dynamique, ce bien est accompagné de 18 places de stationnement extérieures.
Livraison dernier trimestre 2026.
Possibilités de divisions à partir de 150 m².
Possibilité de louer le RDC sur une base de 80 000 € HT / an, offrant un rendement immédiat.
PLU autorisant une hauteur jusqu'à 15 mètres :
le propriétaire du toit-terrasse pourra surélever le bâtiment à terme, avec un vrai potentiel de création de valeur.
Immeuble neuf, lisible, sans aléas techniques lourds.
Produit parfaitement adapté à une stratégie multi-lots, combinant rendement et valorisation.

CONDITIONS JURIDIQUES ET FINANCIÈRES

Loyer :
0 € HT HC/m²/an

SERVICES & PRESTATION

  • Brut de décoffrage
  • Tableau électrique
  • Arrivées et évacuations d'eau

SURFACE

Type Surfaces Prix info
COMMERCE 884 m² 3 150 000 €
COMMERCE 150 m² 3 150 000 €
Votre conseiller :

Marine GRIPON

07 64 85 16 28

Avatar

EMPLACEMENT

  • A13
  • A14
  • Bus 6512 Gare RER A de Poissy
  • Bus 7801 et 7819 Gare transilien J des Mureaux

PERFORMANCE ÉNERGÉTIQUE ET CLIMATIQUE

En cours de détermination

  1. Accueil
  2. Vente de commerce
  3. Yvelines (78)
  4. Orgeval (78630)

Vous avez un projet immobilier ?

Contactez-nous !

Laissez-nous vos coordonnées, l'un de nos consultants vous contactera très prochainement pour échanger.